ID CP2284652
Hala industrială nouă de vânzare in zona de Sud a Bucurestiului
ID CP2284652
349,000 € (negociabil) + 21% TVA
Descoperiți o hală industrială de ultimă generație, disponibilă imediat, poziționată excelent în comuna Frumușani – la doar câteva minute de Șoseaua Olteniței (DN4) și Autostrada A0 (noul inel de centură al Capitalei). Acces rapid către București, Ilfov, Pitești, Constanța și Giurgiu, perfect pentru afaceri care cer acces rutier rapid și eficiență logistică.
Specificații tehnice:
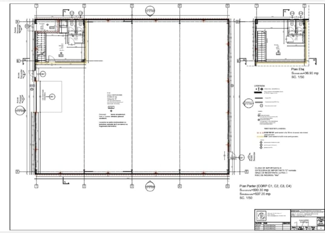
Suprafață totală construită: 586 mp
500 mp spațiu industrial (depozitare / producție)
80 mp spațiu birouri – finisate, moderne, eficiente
Înălțime utilă: 7,85 m (coamă), 6,15 m (streașină) – ideală pentru stocare verticală / rafturi industriale
Construcție nouă – anul 2025
Panouri sandwich termoizolante 10 cm
Eficiență termică și fonică ridicată – costuri minime de întreținere
Structură solidă, pregătită pentru flux operațional continuu
Utilități industriale complete:
Curent trifazic (50 kW) – potrivit pentru linii de producție
Post trafo propriu – independență energetică
Fântână de foraj + bazin vidanjabil
Gaze naturale – racordabil la rețea
Acces TIR cu drum asfaltat – logistică fără blocaje
Avantaje competitive:
Poziționare strategică – ideală pentru hub logistic sau centru de distribuție
Clădire nouă = 0 costuri de renovare
Eficiență energetică – economie pe termen lung
Flexibilitate funcțională – spațiul se pretează pentru:
Producție industrială
Activități logistice
Ateliere mecanice / auto
Comerț en-gros / showroom
Preț competitiv: doar 349.000 € + TVA (sub media pieței industriale din zona periurbană București)
Disponibilitate imediată – perfectă pentru start rapid sau relocare operațională
Public țintă:
Companii de logistică / transport – cu nevoi de depozitare și livrare rapidă
Producători industriali în extindere
Distribuitori / importatori / exportatori ce caută un punct strategic în sudul Capitalei
Investitori imobiliari – cu potențial excelent de închiriere și randament
Firme auto, ateliere, service-uri cu trafic ridicat
Contact & Vizionare:
Această hală industrială modernă de vânzare în Frumușani este soluția perfectă pentru dezvoltarea sau relocarea unei afaceri într-un spațiu optimizat pentru eficiență operațională și creștere sustenabilă.
Contactează-ne pentru detalii suplimentare, planuri tehnice, randamente potențiale și o vizionare personalizată.
 
         
         
         
         
         
         
         
         
         
         
         
         
         
         
         
         
         
         
         
         
         
         
         
         
         
         
         
         
         
         
         
         
         
         
         
         
         
         
         
         
         
         
         
         
         
         
         
         
         
         
         
         
         
         
         
         
         
         
         
         
         
        